Negozio in affitto

Castelvetro Piacentino, Via Statale
€ 1.150 / mese
1 locale 1 locale
85 Mq 85 Mq
1 bagno 1 bagno

Negozio in affitto

Castelvetro Piacentino, Via Statale

Descrizione annuncio

DESCRIZIONE E PARTICOLARITÀ

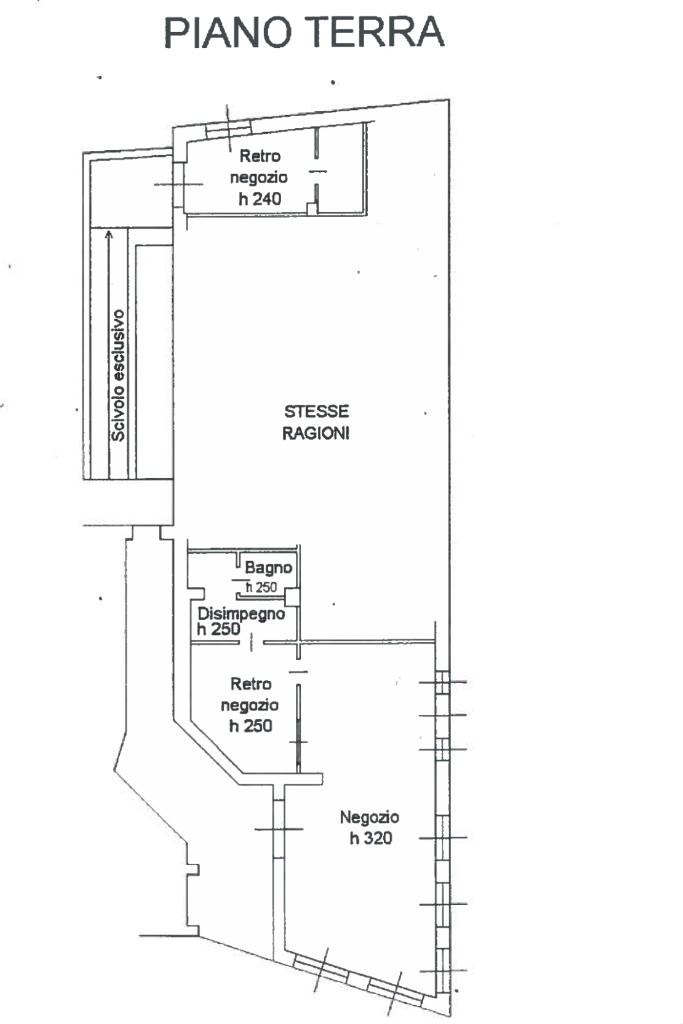
Proponiamo in locazone negozio open space situato a Castelvetro Piacentino, più precisamnete in Via Statale. L'immobile si trova al piano terra e si estende su una superficie di circa 85 mq. Ambienti luminosi e recentemente rinnovati per offrire il massimo comfort operativo. Completo di tutti gli impianti autonomi.

Caratteristiche principali

- Ristrutturato nel 2015

- Altezza soffitto: 2,60 m

- Tre vetrine fronte strada

- Accesso disabili

- Riscaldamento e condizionamento autonomi

- Ventilazione meccanica

- Impianto di illuminazione

- Impianto di allarme

- Infissi in metallo e porta blindata

- Internet a banda larga e cablaggio rete

E' PRESENTE UN ULTERIORE SPAZIO DI 15 MQ ADIBITO A DEPOSITO/MAGAZZINO.

Posizione e contesto

Il locale si trova in Via Statale – Castelvetro Piacentino (PC) in una zona ben servita e caratterizzata da un contesto residenziale e commerciale vivace. La posizione garantisce un ottimo passaggio pedonale e veicolare, con facile accesso ai principali servizi e collegamenti. Nelle immediate vicinanze sono presenti negozi, uffici, fermate del trasporto pubblico e parcheggi, rendendo questo spazio ideale per diverse tipologie di attività che richiedono visibilità e praticità.

Mostra tutto

Nelle vicinanze

Trasporto pubblico Trasporto pubblico
Castelvetro
Castelvetro
1,8 Km
Trasporto pubblico
20 m
Ricariche auto elettriche Ricariche auto elettriche
Castelvetro Dante | EnelX
1,1 Km
Ekomobil - 22 kW
1,6 Km
Cremona Piscina Comunale | EnelX
1,8 Km
EnelX Municipio di Castelvetro Piacentino
1,9 Km
A2A Cremona Po
2,0 Km
Scuole Scuole
Scuole
1,0 Km
Farmacia Farmacia
Lloyds Farmacia Comunale 3
2,7 Km
Supermercati Supermercati
Carrefour
230 m
Coop
1,3 Km
Simply Market
2,0 Km
Supermercantino
2,2 Km
Coop Porta Po
2,6 Km
Negozi Negozi
Negozi
2,3 Km
Bar Bar
Bar
770 m
Bar Ponticello
790 m
Livrini
1,4 Km
La Capannina
2,1 Km
Ristoranti Ristoranti
Osteria del Pescatore
470 m
Trattoria Secondo Baracchino
790 m
Ai Pisaroni
1,3 Km
Ristorante MAC
1,5 Km
Ristoranti
1,5 Km
Mostra tutto

Caratteristiche

Rif.:
61102307
Piano:
Terra di 2
Totale piani:
2
Posti auto:
4
Condizionamento:
Autonomo
Ascensore:
No
Mostra tutto
Prezzo Prezzo
€ 1.150 / mese
Spese annue Spese annue
€ 4

Altre caratteristiche

Descrizione dei locali
Bagno antibagno

Classe Energetica

Questo immobile è esente da classe energetica
Anno di costruzione:
1980
Riscaldamento:
Autonomo
Tipo impianto:
Ad aria
Tipo alimentazione:
Aria

Ti interessa visionare l'immobile?

Fissa un appuntamento  Fissa un appuntamento

Richiedi informazioni

Clicca su Leggi per aprire l'informativa
* Questi campi sono obbligatori
Affiliato
Industriale Piacenza Srl
Via Maestri del Lavoro, 11 29122 Piacenza (PC)

Il nostro staff


  • Matteo Ferrari
    Collaboratore

  • Nicola Gervasi
    Affiliato

  • Andrea Gatti
    Affiliato

  • Toni Koshaj
    Collaboratore

  • Riccardo Manes
    Collaboratore

  • Valentina Sozzi
    Coordinatrice

  • Ilaria Trolli
    Coordinatrice

  • Claudio Valecci
    Affiliato

  • Francesca Lanzini
    Affiliata
Via Maestri del Lavoro, 11 29122 Piacenza (PC)
Zona: Piacenza
Mostra su mappa
Affiliato
Industriale Piacenza Srl
Via Maestri del Lavoro, 11 29122 Piacenza (PC)

2026 Tecnocasa Franchising S.p.A. - P. IVA 08365160152 - Via Monte Bianco 60/A 20089 Rozzano (MI). Ogni agenzia ha un proprio titolare ed è autonoma. Privacy policy | Policy utilizzo | Cookie policy