Ufficio in vendita

Piacenza, Via Santa Franca
€ 280.000
6 locali 6 locali
205 Mq 205 Mq
2 bagni 2 bagni

Ufficio in vendita

Piacenza, Via Santa Franca

Descrizione annuncio

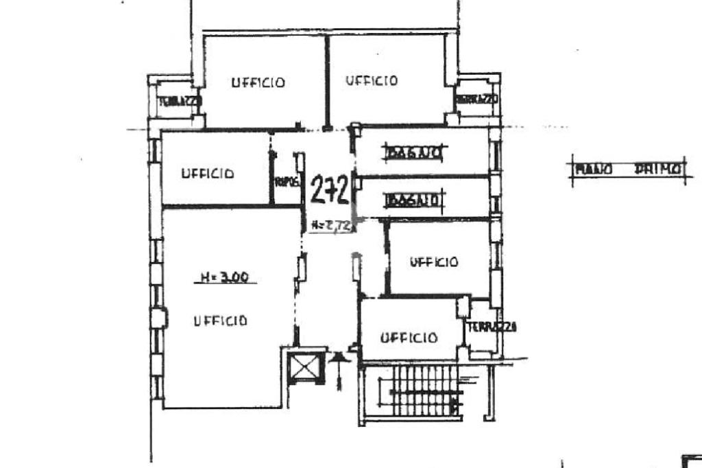
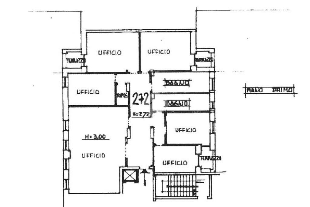
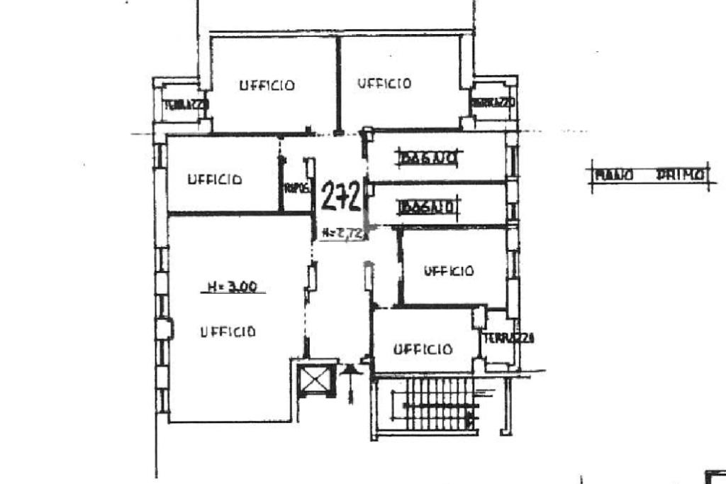
Nel cuore di Piacenza, in una delle vie più servite e centrali della città, proponiamo in vendita un ampio ufficio di rappresentanza di 205 mq, ideale per studi professionali o aziende che cercano spazi funzionali, eleganti e già pronti all’uso. L’immobile si distingue per la razionale distribuzione degli ambienti e le dotazioni complete, che garantiscono comfort e professionalità in ogni dettaglio.

Caratteristiche principali

Superficie complessiva: 205 mq

Locali: 6 ambienti ampi e luminosi + reception

Servizi igienici: 2, di cui uno con doccia

Cucina/mensa attrezzata

Deposito/magazzino di 20 mq

Piano: edificio servito da ascensore

Balconi: 3, con affacci esterni

Box auto privato

Altezza soffitti: 3 metri

Accessibilità: accesso disabili, porta blindata, controllo accessi

Impianti:

Riscaldamento e condizionamento centralizzati

Impianto elettrico e di illuminazione a norma

Contesto e posizione

Situato in Via Santa Franca, l’immobile gode di una posizione strategica nel centro urbano di Piacenza, facilmente raggiungibile sia in auto che con i mezzi pubblici. L’area è caratterizzata da servizi di ogni tipo – banche, ristoranti, uffici pubblici, negozi e parcheggi – che rendono questa soluzione perfetta per chi desidera un ambiente di lavoro dinamico e ben collegato.
La vicinanza al centro storico, alla stazione ferroviaria e alle principali arterie cittadine conferma il valore dell’ubicazione, ideale per attività professionali di rappresentanza o per società che necessitano di una sede operativa di prestigio.

Mostra tutto

Nelle vicinanze

Trasporto pubblico Trasporto pubblico
stazione di Piacenza
stazione di Piacenza
1,4 Km
Stradone Farnese, 2/L
Stradone Farnese, 2/L
200 m
Via IV Novembre, 132 (Isii - Tramello)
Via IV Novembre, 132 (Isii - Tramello)
210 m
Ricariche auto elettriche Ricariche auto elettriche
Eneldrive Cavour 7
760 m
Eneldrive Cavour 60
940 m
Eneldrive Punto Enel
1,1 Km
Lidl Piacenza Cerati
1,3 Km
Lidl Piacenza Emilia
1,5 Km
Scuole Scuole
I.S.I.I. "G.Marconi"
250 m
Scuola primaria Pietro Giordani
260 m
Conservatorio di musica "Giuseppe Nicolini"
290 m
Liceo Scientifico Respighi
300 m
Scuola Media Dante Alighieri
350 m
Farmacia Farmacia
Parafarmacia Il Sorriso
310 m
Farmacia Corvi Gianni s.n.c.
390 m
Parafarmacia del Corso
430 m
Farmacia Dante
460 m
Farmacia Laneri dei Dottori Laneri Roberto e Violante s.n.c.
500 m
Ospedali Ospedali
Ex Ospedale Militare
430 m
Casa di Cura S.Antonino
560 m
Croce Rossa Italiana
700 m
Guglielmo Da Saliceto
1,1 Km
Ospedale "Guglielmo da Saliceto" - Neurologia - Day Service
1,2 Km
Supermercati Supermercati
Rilevo Srl
390 m
crai
460 m
Gelateria La deligia
520 m
SMA
580 m
Sapori e dintorni Conad
720 m
Negozi Negozi
Unknown
260 m
Highlife Store Piacenza
270 m
Camillo Franchini
270 m
Negozi
270 m
Nichos
290 m
Bar Bar
Bar
100 m
Cheope
240 m
Bar Simona
270 m
Cheap & Chic
290 m
My Way
300 m
Ristoranti Ristoranti
Da Chrisitian
240 m
Old Faxhall
240 m
Pizzeria MareChiaro
270 m
Ristoranti
280 m
SoSushi
280 m
Mostra tutto

Caratteristiche

Rif.:
61124836
Piano:
1 di 9 con ascensore (Piano terra)
Box:
1
Balconi:
3
Condizionamento:
Centralizzato
Ascensore:
Mostra tutto
Prezzo Prezzo
€ 280.000
Rata mutuo Rata mutuo
€ 1.319 / mese
Spese annue Spese annue
€ 0
Proponi il tuo prezzoProponi il tuo prezzo

Altre caratteristiche

Descrizione dei locali
Bagno antibagno

Classe Energetica

Questo immobile è esente da classe energetica
Anno di costruzione:
1990
Riscaldamento:
Centralizzato
Tipo impianto:
Ad aria
Tipo alimentazione:
Aria

Ti interessa visionare l'immobile?

Fissa un appuntamento  Fissa un appuntamento

Richiedi informazioni

Clicca su Leggi per aprire l'informativa
* Questi campi sono obbligatori

Calcola il tuo mutuo

Semplice e senza impegno
Anticipo

( % )
Mutuo

( % )

pochi semplici passi

inserisci i tuoi dati
Questionario completato
Grazie per aver richiesto un appuntamento senza impegno con un nostro Consulente del Credito e Assicurativo.

Hai inserito correttamente tutti i dati necessari e a breve riceverai una e-mail con un link da convalidare per inviare i tuoi dati.
Affiliato
Industriale Piacenza Srl
Via Maestri del Lavoro, 11 29122 Piacenza (PC)

Il nostro staff


  • Matteo Ferrari
    Collaboratore

  • Nicola Gervasi
    Affiliato

  • Andrea Gatti
    Affiliato

  • Toni Koshaj
    Collaboratore

  • Riccardo Manes
    Collaboratore

  • Valentina Sozzi
    Coordinatrice

  • Ilaria Trolli
    Coordinatrice

  • Claudio Valecci
    Affiliato

  • Francesca Lanzini
    Affiliata
Via Maestri del Lavoro, 11 29122 Piacenza (PC)
Zona: Piacenza
Mostra su mappa
Affiliato
Industriale Piacenza Srl
Via Maestri del Lavoro, 11 29122 Piacenza (PC)

2026 Tecnocasa Franchising S.p.A. - P. IVA 08365160152 - Via Monte Bianco 60/A 20089 Rozzano (MI). Ogni agenzia ha un proprio titolare ed è autonoma. Privacy policy | Policy utilizzo | Cookie policy